トレーラーハウスを事業活用や住居用に検討する際、最も重要なのが『間取り』の選定です。法規制で最大約40㎡までと制限がある中、用途に応じた最適な間取りを選ばないと、導入後に後悔するケースが少なくありません。店舗・事務所・宿泊施設など、目的によって必要な動線や設備配置は大きく変わります。この記事では、サイズ別の具体的な間取りパターンから、用途別の選び方、発注までの実践的な5ステップまで徹底解説します。
トレーラーハウスの間取りは最大約40㎡|サイズ・用途で最適解が変わる

トレーラーハウスの間取りは、道路運送車両法の制約により最大約40㎡(約24畳)が上限となります。
具体的には「幅2.5m×長さ12m×高さ3.8m以内」という車両規定に収める必要があり、単純計算で最大床面積は30㎡程度ですが、ロフトや半地下構造を活用することで実質40㎡相当まで拡張可能です。
ただし、広ければ良いわけではありません。
事務所として使うなら10〜20㎡のコンパクトタイプで十分な場合もあり、逆に宿泊施設として活用するなら水回り設備を含めた30㎡以上が必要になります。
用途を明確にした上で、必要な機能と予算のバランスを考慮することが成功の鍵です。
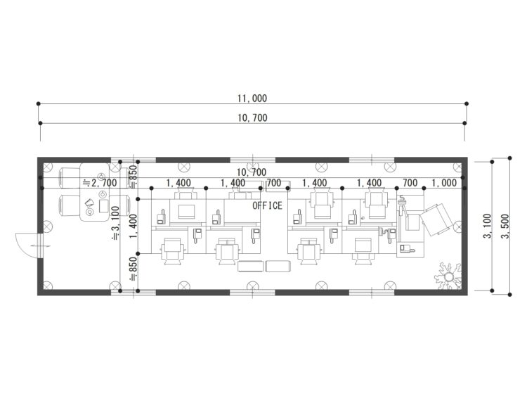
例えば、カフェ店舗として運営する場合、客席スペース・厨房・トイレの配置が重要になり、20〜30㎡の標準サイズが最適解となるケースが多く見られます。
トレーラーハウスの間取りを左右する3つの制約条件

トレーラーハウスの間取りを決める際には、3つの重要な制約条件を理解しておく必要があります。
これらを事前に把握しないと、理想の間取りが実現できなかったり、設置後にトラブルが発生したりするリスクがあります。
車両サイズ規定による物理的制限(幅2.5m×全長12m以内)
道路運送車両法により、トレーラーハウスが『車両』として認定されるためには厳格なサイズ制限があります。
幅2.5m×全長12m×高さ3.8m以内というこの規定は、間取り設計の絶対的な制約となります。
特に幅2.5mという制限は、居住空間としては決して広くないため、廊下を設けずにワンルーム形式にする、収納を壁面に集約するなど、空間効率を最大化する工夫が求められます。
また、この規定を超えると『建築物』扱いとなり、建築確認申請や固定資産税の課税対象となるため注意が必要です。
一部の業者では、幅3.2m×長さ11mの『フルサイズ型』を提供していますが、これは車両認定を受けない建築物扱いとなり、用途や設置場所の自由度が制限されます。
設置場所・搬入経路が間取り選定に与える影響
どれだけ理想的な間取りを設計しても、設置場所まで搬入できなければ意味がありません。
トレーラーハウスは大型車両で運搬されるため、搬入経路の道路幅(最低4m以上推奨)、橋の耐荷重、カーブの曲率などを事前調査する必要があります。
例えば、山間部や住宅密集地では12m全長のトレーラーハウスが搬入不可能な場合があり、その場合は8m程度の小型サイズに変更せざるを得ません。
また、設置場所の地盤状況も重要です。
トレーラーハウスは車輪付きのため、地盤が軟弱だと沈下や傾斜のリスクがあります。
砂利敷きやコンクリート基礎の整備が必要になる場合、その分の追加コストも考慮しなければなりません。
事業用途と必要機能のバランス
間取りを決める上で最も重要なのが、事業用途に応じた必要機能の洗い出しです。
事務所として使うなら作業デスクと収納スペース、店舗なら接客エリアとバックヤード、宿泊施設なら寝室と水回り設備といった具合に、用途によって優先すべき要素が大きく変わります。
例えば、美容サロンとして運営する場合、施術スペース・待合エリア・洗面台・トイレが必須となり、最低でも20㎡以上の広さが必要です。
一方で、作業場や倉庫として使うなら水回り設備は不要なため、10〜15㎡のコンパクトタイプで十分なケースもあります。
また、将来の用途変更の可能性も考慮すべきです。
最初は事務所として使い、後に店舗や宿泊施設に転用する場合、配管・電気配線の拡張性を確保した間取り設計が重要になります。
【サイズ別】トレーラーハウスの間取りパターン一覧

トレーラーハウスの間取りは、サイズによって実現できる空間構成が大きく異なります。
ここでは、サイズ別に具体的な間取りパターンと適した用途を解説します。
コンパクトタイプ(10〜20㎡・6〜12畳)の間取り
10〜20㎡のコンパクトタイプは、事務所・作業場・小規模店舗に適したサイズです。
代表的な間取りパターンとしては、以下のような構成が挙げられます。
- ワンルームタイプ:10〜15㎡、デスクスペース+収納+ミニキッチン
- 1K+ロフトタイプ:15〜20㎡、メインスペース+トイレ+ロフト収納
- 店舗タイプ:15〜20㎡、接客スペース+バックヤード+トイレ
コンパクトタイプの最大の利点は、初期コストが300万円台〜と導入しやすい点です。
また、搬入経路の制約が少なく、狭小地でも設置可能なケースが多いです。
一方で、水回り設備(シャワー・浴室)を設置すると空間が圧迫されるため、事務所や日帰り店舗としての利用が現実的です。

参考:写真あり】トレーラーハウスの間取りや内装を使用用途別に紹介
スタンダードタイプ(20〜30㎡・12〜18畳)の間取り
20〜30㎡のスタンダードタイプは、最も汎用性が高く人気のあるサイズです。
店舗・サロン・小規模宿泊施設など、幅広い用途に対応できます。
代表的な間取りパターンは以下の通りです。
- 1LDKタイプ:20〜25㎡、リビング+寝室+キッチン+トイレ+シャワー
- 店舗タイプ:25〜30㎡、客席エリア+厨房+トイレ+バックヤード
- サロンタイプ:20〜30㎡、施術スペース2〜3席+待合+洗面+トイレ
このサイズになると、水回り設備(トイレ・シャワー・キッチン)を全て設置しても居住空間を確保できるため、宿泊施設としての運営も現実的になります。
例えば、グランピング施設として活用する場合、ダブルベッド+ミニキッチン+シャワー+トイレという構成で、カップル向けの快適な宿泊空間を提供できます。
価格帯は500万円〜800万円程度で、費用対効果が高いサイズと言えます。

参考:写真あり】トレーラーハウスの間取りや内装を使用用途別に紹介
大型タイプ(30〜40㎡・18〜24畳)の間取り
30〜40㎡の大型タイプは、車両認定の上限に近いサイズで、最も広い居住空間を実現できます。
住居としての快適性や、店舗としての集客力を最大化したい場合に選ばれます。
代表的な間取りパターンは以下の通りです。
- 2LDKタイプ:30〜35㎡、リビング+寝室2部屋+キッチン+浴室+トイレ
- 大型店舗タイプ:35〜40㎡、広い客席エリア+厨房+トイレ2室+バックヤード
- ロフト付きタイプ:30〜40㎡、メインフロア+ロフト(寝室・収納)
このサイズになると、家族での居住や、本格的な店舗運営が可能になります。
例えば、レストランとして活用する場合、10〜15席の客席と本格的な厨房設備を配置でき、通常の店舗と遜色ない営業が可能です。
ただし、価格は800万円〜1,200万円以上と高額になり、搬入条件も厳しくなるため、事前の十分な検討が必要です。

参考:写真あり】トレーラーハウスの間取りや内装を使用用途別に紹介
連結型で40㎡以上に拡張する方法
1台のトレーラーハウスでは40㎡が限界ですが、複数台を連結することで50㎡以上の広い空間を実現できます。
連結方法には以下の2つのパターンがあります。
- 横連結:2台を並べて接続部分にデッキや通路を設置。事務所+店舗、住居+作業場など機能を分けた利用が可能
- 縦連結:2台を前後に配置し、内部で連結。大型店舗や宿泊施設として広いワンルーム空間を作れる
例えば、20㎡のトレーラーハウスを2台連結すれば、合計40㎡の広い空間を確保でき、レストランやカフェの本格的な運営が可能になります。
ただし、連結した場合は『車両』ではなく『建築物』扱いとなるため、建築基準法の適用を受け、建築確認申請や固定資産税の課税対象となります。
また、連結部分の構造強度や防水処理が不十分だと雨漏りのリスクがあるため、専門業者による施工が必須です。
費用は2台分の本体価格+連結工事費で、合計1,000万円〜2,000万円程度が目安となります。
【用途別】事業目的に最適なトレーラーハウスの間取りの選び方

トレーラーハウスの間取りは、事業用途によって最適解が大きく異なります。
ここでは、代表的な4つの用途別に、間取り選定のポイントと成功事例を紹介します。
事務所・ワークスペース利用に適した間取り
事務所やワークスペースとして活用する場合、作業効率と快適性を両立する間取りが求められます。
必要な要素は以下の通りです。
- デスクスペース:従業員数×2㎡以上の作業エリア
- 収納スペース:書類・備品を整理できる壁面収納
- ミニキッチン:休憩時の飲食用(冷蔵庫・電子レンジ設置可)
- トイレ:長時間作業する場合は必須
- 通信環境:電源・LANケーブル配線の確保
推奨サイズは10〜20㎡(6〜12畳)で、1〜4人程度の小規模オフィスに最適です。
例えば、IT企業のサテライトオフィスとして15㎡のトレーラーハウスを活用する場合、デスク3台+ミーティングテーブル+収納棚という構成で、快適な作業環境を実現できます。
また、建設現場の仮設事務所として使う場合は、トイレ付きの20㎡タイプが選ばれることが多いです。

参考:写真あり】トレーラーハウスの間取りや内装を使用用途別に紹介
店舗・サロン利用に適した間取り
店舗やサロンとして活用する場合、接客動線と顧客の快適性が最重要ポイントです。
必要な要素は以下の通りです。
- 接客エリア:客席・施術スペースを広く確保
- バックヤード:商品在庫・備品収納スペース
- 水回り設備:トイレは必須、美容サロンなら洗面台も
- 厨房設備:飲食店の場合は業務用シンク・調理スペース
- 入口の配置:顧客とスタッフ動線を分離できる設計
推奨サイズは20〜30㎡(12〜18畳)で、カフェ・美容サロン・ネイルサロンなど幅広い業種に対応できます。
例えば、カフェとして25㎡のトレーラーハウスを活用する場合、客席8〜10席+厨房+トイレという構成で、小規模ながら本格的な営業が可能です。
美容サロンの場合は、施術スペース2席+待合+洗面台+トイレで20㎡あれば十分な空間を確保できます。
店舗として成功させるポイントは、窓を大きく取って開放感を出すことと、看板・外装デザインで集客力を高めることです。
宿泊施設・グランピング利用に適した間取り
宿泊施設やグランピング施設として活用する場合、宿泊客の快適性と非日常感を演出する間取りが求められます。
必要な要素は以下の通りです。
- 寝室エリア:ダブルベッドまたはツインベッド設置可能な広さ
- リビングスペース:ソファ・テーブルでくつろげるエリア
- 水回り設備:シャワー・トイレ・洗面台は必須
- ミニキッチン:簡単な調理ができる設備
- デッキ・テラス:屋外空間で自然を満喫できる設計
推奨サイズは20〜30㎡(12〜18畳)で、カップルや家族連れに対応できる広さです。
例えば、グランピング施設として25㎡のトレーラーハウスを活用する場合、ダブルベッド+リビング+キッチン+シャワー+トイレという構成で、ホテル並みの快適な宿泊環境を提供できます。
また、ロフト付きタイプを選べば、寝室とリビングを分離でき、より広々とした空間演出が可能です。
宿泊施設として成功させるポイントは、内装デザインにこだわり、SNS映えする空間を作ることと、エアコン・断熱材で快適な室温を保つことです。
離れ・セカンドハウス利用に適した間取り
離れやセカンドハウスとして活用する場合、居住性と生活動線の快適さが最優先です。
必要な要素は以下の通りです。
- 寝室:プライバシーを確保できる独立した空間
- リビング・ダイニング:家族がくつろげる広さ
- キッチン:本格的な調理が可能な設備
- 浴室・トイレ:生活に必要な水回り設備
- 収納スペース:衣類・生活用品を収納できる十分な容量
推奨サイズは30〜40㎡(18〜24畳)で、1〜2人の長期居住に適しています。
例えば、親世帯の敷地内に離れとして設置する場合、35㎡の2LDKタイプを選べば、寝室+リビング+キッチン+浴室+トイレという一般住宅と同等の生活空間を確保できます。
また、週末のセカンドハウスとして使う場合、30㎡の1LDKタイプでも十分な快適性を得られます。
離れとして成功させるポイントは、断熱・防音性能を高めて居住環境を改善することと、配線・配管を本宅と連結して利便性を向上させることです。
トレーラーハウスの間取り決定から発注までの5ステップ

トレーラーハウスの間取りを決定し、実際に発注するまでの具体的な手順を5ステップで解説します。
この流れに沿って進めることで、失敗やトラブルを最小限に抑えられます。
ステップ1:用途と必要機能を明確化する
まず最初に、トレーラーハウスを何の目的で使うのか、どんな機能が必要なのかを明確にします。
この段階で曖昧なまま進めると、後から『この設備が必要だった』『この広さでは足りない』といった後悔につながります。
以下のチェックリストで要件を整理しましょう。
- 用途:事務所/店舗/宿泊施設/住居/その他
- 利用人数:何人が同時に使用するか
- 必要な設備:トイレ/シャワー/キッチン/エアコン/収納
- 電気・水道:既存インフラへの接続可否
- 優先順位:広さ/機能性/デザイン/予算のどれを重視するか
例えば、美容サロンとして使う場合、『施術スペース2席+待合+洗面台+トイレ』が必須要件となり、この時点で最低20㎡以上のサイズが必要だと判断できます。
また、将来的に用途を変更する可能性がある場合は、拡張性のある間取り設計を検討しておくことが重要です。
ステップ2:設置場所の条件を確認する
次に、設置予定地の物理的条件を確認します。
どれだけ理想的な間取りを設計しても、設置場所の条件に合わなければ実現できません。
以下の項目をチェックしましょう。
- 土地の広さ:トレーラーハウスのサイズ+周囲の余裕スペース
- 地盤の状態:軟弱地盤の場合は基礎工事が必要
- 搬入経路:道路幅・カーブ・橋の耐荷重を確認
- 法規制:都市計画法・建築基準法の制約(市街化調整区域など)
- インフラ接続:電気・水道・下水の引き込み可否と費用
特に重要なのが搬入経路の確認です。
大型トレーラーハウス(全長12m)を搬入する場合、最低でも道路幅4m以上、カーブ半径20m以上が必要となります。
これらの条件を満たさない場合、小型サイズに変更するか、分割搬入が可能な連結型を検討する必要があります。
また、設置場所が市街化調整区域の場合、建築物扱いになると建築許可が必要になるため、車両認定を維持できる仕様を選ぶことが重要です。
ステップ3:サイズと概算予算を決める
用途と設置場所の条件が明確になったら、具体的なサイズと予算を決定します。
トレーラーハウスの価格は、サイズと設備によって大きく変動します。
一般的な価格帯は以下の通りです。
- コンパクトタイプ(10〜20㎡):300万円〜600万円
- スタンダードタイプ(20〜30㎡):500万円〜800万円
- 大型タイプ(30〜40㎡):800万円〜1,200万円以上
これに加えて、以下の追加費用を考慮する必要があります。
- 運搬・設置費用:30万円〜100万円(距離・搬入難易度による)
- 基礎工事:20万円〜80万円(地盤状況による)
- インフラ接続工事:30万円〜100万円(電気・水道・下水)
- 外構工事:デッキ・フェンスなど、10万円〜50万円
例えば、25㎡の店舗用トレーラーハウスを導入する場合、本体価格600万円+運搬・設置50万円+基礎工事30万円+インフラ接続50万円で、合計730万円程度が目安となります。
予算が限られている場合は、中古トレーラーハウスも選択肢に入れると、新品の50〜70%の価格で購入できます。
ステップ4:複数業者から間取りプランを取得・比較する
サイズと予算が決まったら、複数の業者に見積もりと間取りプランを依頼します。
1社だけで決めると、価格や間取りの妥当性を判断できないため、最低でも3社以上から提案を受けることをおすすめします。
業者選定のポイントは以下の通りです。
- 実績:同じ用途での施工事例が豊富か
- カスタマイズ対応:間取り変更にどこまで柔軟に対応できるか
- アフターサポート:保証期間・修理対応の充実度
- 車両認定の知識:道路運送車両法を正しく理解しているか
- 価格の透明性:見積もりが詳細で追加費用の説明が明確か
見積もり依頼時には、ステップ1で整理した要件リストを提示し、『この用途で最適な間取りプラン』を提案してもらいましょう。
また、間取り図だけでなく、3Dパースや実際の施工事例写真を見せてもらうと、完成後のイメージがより具体的になります。
複数の提案を比較する際は、価格だけでなく、動線の使いやすさ・収納の充実度・将来の拡張性なども総合的に評価することが重要です。
ステップ5:最終プランを確定し発注する
複数業者の提案を比較検討し、最も条件に合ったプランを選んだら、最終的な仕様を確定して発注します。
発注前に以下の項目を必ず確認しましょう。
- 間取り図の最終確認:寸法・配置・設備の位置に誤りがないか
- 仕様書の詳細確認:建材・設備機器の型番・グレードを明記
- 見積もりの最終確認:追加費用が発生する可能性の有無
- 納期・支払条件:製作期間(通常2〜4ヶ月)と支払いスケジュール
- 保証内容:保証期間・対象範囲・修理対応の条件
特に重要なのが、車両認定を維持できる仕様かどうかの確認です。
設置後に基礎に固定したり、車輪を外したりすると建築物扱いになり、固定資産税の課税対象となります。
これを避けるためには、以下の条件を満たす必要があります。
- 随時かつ任意に移動できる状態を維持(ライフラインの着脱が容易)
- 車輪がタイヤと接地している状態を保つ
- 道路運送車両法のサイズ規定内に収まっている
契約時には、これらの条件を契約書に明記し、業者側に責任を持ってもらうことが重要です。
発注後は、製作途中での仕様変更が難しいため、最終確認は念入りに行いましょう。
トレーラーハウスの間取り選びで失敗しないための注意点

トレーラーハウスの間取り選びでは、よくある失敗パターンがあります。
ここでは、導入後に後悔しないための重要な注意点を3つ解説します。
「広ければ良い」わけではない理由
トレーラーハウスを検討する際、『できるだけ広い方が良い』と考えがちですが、広さは必ずしもメリットだけではありません。
広いサイズを選ぶことで発生するデメリットは以下の通りです。
- 初期コストの増加:30㎡と40㎡では価格差が200万円以上になることも
- 搬入条件の厳しさ:全長12mの大型は搬入できる土地が限られる
- ランニングコストの増加:冷暖房の効率が悪く光熱費が上がる
- 移動の困難さ:将来的に移設する場合の費用・手間が増える
例えば、事務所として使う場合、従業員3人なら15㎡のコンパクトタイプで十分なのに、30㎡の大型を選ぶと、初期費用が500万円以上増加し、その分回収期間が長くなります。
また、広い空間は冷暖房の効率が悪く、夏は冷えにくく冬は暖まりにくいという問題も発生します。
最適なサイズは、用途と予算のバランスで決めるべきです。
『将来的に使い道が広がるかもしれない』という曖昧な理由で大型を選ぶのではなく、現時点で必要な機能を満たす最小サイズを選ぶことが、費用対効果を最大化する秘訣です。
将来の用途変更を見据えた設計のコツ
トレーラーハウスは移動可能な特性から、将来的に用途を変更できる柔軟性が大きなメリットです。
しかし、最初の間取り設計で柔軟性を考慮しておかないと、後から用途変更が難しくなります。
将来の用途変更を見据えた設計のコツは以下の通りです。
- 配管・配線の拡張性:水回り設備を後から追加できるよう、配管スペースを確保
- 間仕切りの変更可能性:固定壁ではなく、可動式パーティションを採用
- 汎用性の高い設備:特定用途に特化しすぎない標準的な設備選定
- 電気容量の余裕:後から設備を追加できるよう、電気容量を多めに確保
例えば、最初は事務所として使い、後に店舗に転用する可能性がある場合、トイレ+ミニキッチンを最初から設置しておくことで、後からの改修コストを大幅に削減できます。
また、間仕切りを可動式にしておけば、事務所→サロン→宿泊施設といった多様な用途に対応できます。
ただし、過度な拡張性を追求すると初期コストが膨らむため、『3年以内に用途変更の可能性が高い』場合のみ、柔軟性を重視した設計を選ぶことをおすすめします。
「車両」認定を維持できる間取りの条件
トレーラーハウスの最大のメリットは、車両として認定されることで建築基準法の適用を受けず、固定資産税も課税されない点です。
しかし、間取り設計や設置方法を誤ると、建築物扱いとなり、このメリットが失われます。
車両認定を維持するための条件は以下の通りです。
- サイズ規定の遵守:幅2.5m×全長12m×高さ3.8m以内
- 車輪の接地:タイヤが地面に接している状態を維持(ジャッキアップは可)
- 移動可能性の確保:ライフライン(電気・水道・ガス)が工具を使わず着脱可能
- 基礎への固定禁止:地面にアンカーボルトで固定しない
- 増築の禁止:デッキやテラスを固定構造物として接続しない
特に注意が必要なのが、水回り設備の接続方法です。
トイレや浴室を設置する場合、下水管を地中に埋設すると『随時移動可能』という条件を満たさなくなります。
これを避けるためには、着脱式の排水ホースを使用し、地上配管にする必要があります。
また、デッキやテラスを設置する場合も、トレーラーハウス本体と固定しない『独立構造』にすることで、車両認定を維持できます。
これらの条件を満たさないと、固定資産税(年間数万円〜数十万円)が課税されるほか、建築基準法の適用を受けて建築確認申請が必要になるため、十分な注意が必要です。
まとめ|事業目的に合った間取りで投資効果を最大化しよう

トレーラーハウスの間取り選びは、事業の成否を左右する重要な要素です。
この記事で解説した内容をまとめます。
- 最大サイズは約40㎡:法規制により幅2.5m×全長12m以内だが、用途に応じて最適サイズは異なる
- サイズ別の選択肢:コンパクト(10〜20㎡)は事務所向き、スタンダード(20〜30㎡)は店舗・サロン向き、大型(30〜40㎡)は宿泊・住居向き
- 用途別の最適間取り:事務所は作業効率、店舗は接客動線、宿泊は快適性、住居は居住性を最優先
- 5ステップで確実に導入:用途明確化→設置場所確認→予算決定→業者比較→最終確定の順で進める
- 車両認定の維持:サイズ規定遵守・移動可能性確保・基礎固定禁止が絶対条件
トレーラーハウスは、用途に合った間取りを選べば、通常の建築物より低コストで高い投資効果を得られます。
逆に、間取り選びを誤ると、使い勝手が悪く運営効率が下がり、投資回収が遅れるリスクがあります。
この記事で紹介した選び方とステップを参考に、あなたの事業目的に最適な間取りを見つけてください。
複数業者から提案を受け、実際の施工事例を見て比較することで、後悔のないトレーラーハウス導入が実現できます。
よくある質問(FAQ)

トレーラーハウスで2LDKの間取りは可能ですか?
Q. トレーラーハウスで2LDKの間取りは可能ですか?
**A:** 可能です。30〜40㎡の大型タイプであれば、リビング+寝室2部屋+キッチン+水回りという2LDK構成を実現できます。ただし、各部屋の広さは一般住宅より狭くなるため、収納や家具配置を工夫する必要があります。ロフトを活用すれば、実質的な居住空間をさらに広げることも可能です。
間取りのカスタマイズはどこまでできますか?
Q. 間取りのカスタマイズはどこまでできますか?
**A:** トレーラーハウスの間取りは、サイズ規定(幅2.5m×全長12m以内)を守れば、ほぼ自由にカスタマイズできます。壁の位置、窓の配置、水回り設備の位置など、用途に応じて柔軟に設計可能です。ただし、構造強度や配管・配線の制約があるため、専門業者と相談しながら設計することをおすすめします。一般的に、カスタマイズ度が高いほど価格は上がります。
間取り図だけ先に見ることはできますか?
Q. 間取り図だけ先に見ることはできますか?
**A:** ほとんどの業者は、見積もり依頼時に無料で間取りプランと図面を提供してくれます。用途・希望サイズ・予算を伝えれば、複数の間取りパターンを提案してもらえるケースが多いです。発注前に複数業者から間取り図を取得し、比較検討することで、最適なプランを見つけられます。実際の施工事例写真や3Dパースも併せて確認すると、より具体的にイメージできます。
水回り(トイレ・キッチン・バス)は設置できますか?
Q. 水回り(トイレ・キッチン・バス)は設置できますか?
**A:** 設置可能です。トイレ・ミニキッチン・シャワーブースは標準的に設置でき、浴槽付きの本格的な浴室も大型タイプなら対応できます。ただし、水回り設備を充実させると、その分居住空間が狭くなるため、用途に応じてバランスを考える必要があります。また、車両認定を維持するためには、排水管を着脱式にするなどの配慮が必要です。給水は水道接続または貯水タンク、排水は下水接続または浄化槽が一般的です。
間取りによって価格はどのくらい変わりますか?
Q. 間取りによって価格はどのくらい変わりますか?
**A:** 間取りの複雑さや設備内容によって、同じサイズでも価格は大きく変動します。例えば、20㎡のシンプルなワンルームなら400万円〜ですが、同じ20㎡でも水回り設備(トイレ・シャワー・キッチン)を全て設置すると600万円以上になります。また、間仕切りを増やす、ロフトを追加する、断熱性能を強化するなどのカスタマイズで、さらに50万円〜150万円程度の追加費用が発生します。詳細な見積もりは、具体的な間取りプランを業者に提示して取得することをおすすめします。


コメント